Jia Pengjiao, Zhao Wen, Du Xi, Chen Yang, Zhang Chaozhe, Bai Qian, Wang Zhiguo
School of Resources and Civil Engineering, Northeastern University, NO. 3-11, Wenhua Road, Heping District, Shenyang, People's Republic of China.
School of Civil and Environmental Engineering, UNSW, Sydney, New South Wales 2052, Australia.
R Soc Open Sci. 2019 Feb 13;6(2):181035. doi: 10.1098/rsos.181035. eCollection 2019 Feb.
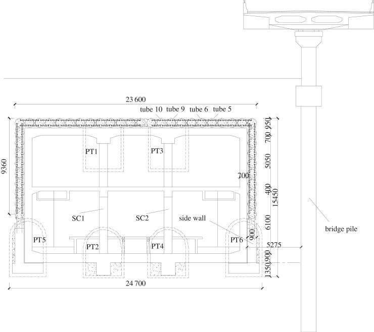
This study presents a novel construction pre-supporting system for large underground space excavation with shallow depth, Steel Tube Slab system (STS), in which adjacent steel pipes are connected by a couple of flanges, bolts and concrete for flexural capacity and lateral stiffness of the whole structure. The STS method is employed for the first time for the construction of the ultra-shallow buried and large span subway station in China, during which ground settlement and structural deformation are monitored. A numerical model for the subway station is established with reliability verified by monitored data comparison from numerical results and investigation on the effect of large span underground excavation on surrounding soil surrounding soil and existing buildings in soft soils. Unlike traditional methods, the STS method can effectively control and reduce the ground settlement during construction, thereby rendering it ideally suited for application in soft soils.
本研究提出了一种用于大深度浅埋地下空间开挖的新型施工预支护系统——钢管板系统(STS),该系统中相邻钢管通过一对法兰、螺栓和混凝土连接,以提高整个结构的抗弯能力和侧向刚度。STS方法首次应用于中国超浅埋大跨度地铁站的建设,并在此期间对地面沉降和结构变形进行了监测。建立了地铁站的数值模型,通过数值结果与监测数据的比较以及对软土地层中大跨度地下开挖对周围土体和既有建筑物影响的调查,验证了模型的可靠性。与传统方法不同,STS方法能够有效控制和减少施工期间的地面沉降,因此非常适合在软土地层中应用。