Suppr超能文献

Study on secondary collapse of the bottom frame masonry structure in semi-ruined state based on FEM-FDEM.

作者信息

Xu Defeng, Sun Feifei, Zhao Huaixiang, Qi Honghui, Chen Limei, Hu Tianyu

机构信息

Jilin Agricultural University, Changchun, 131118, China.

College of Civil Engineering, Tongji University, Shanghai, 200092, China.

出版信息

Sci Rep. 2024 Nov 26;14(1):29405. doi: 10.1038/s41598-024-80612-x.

Abstract

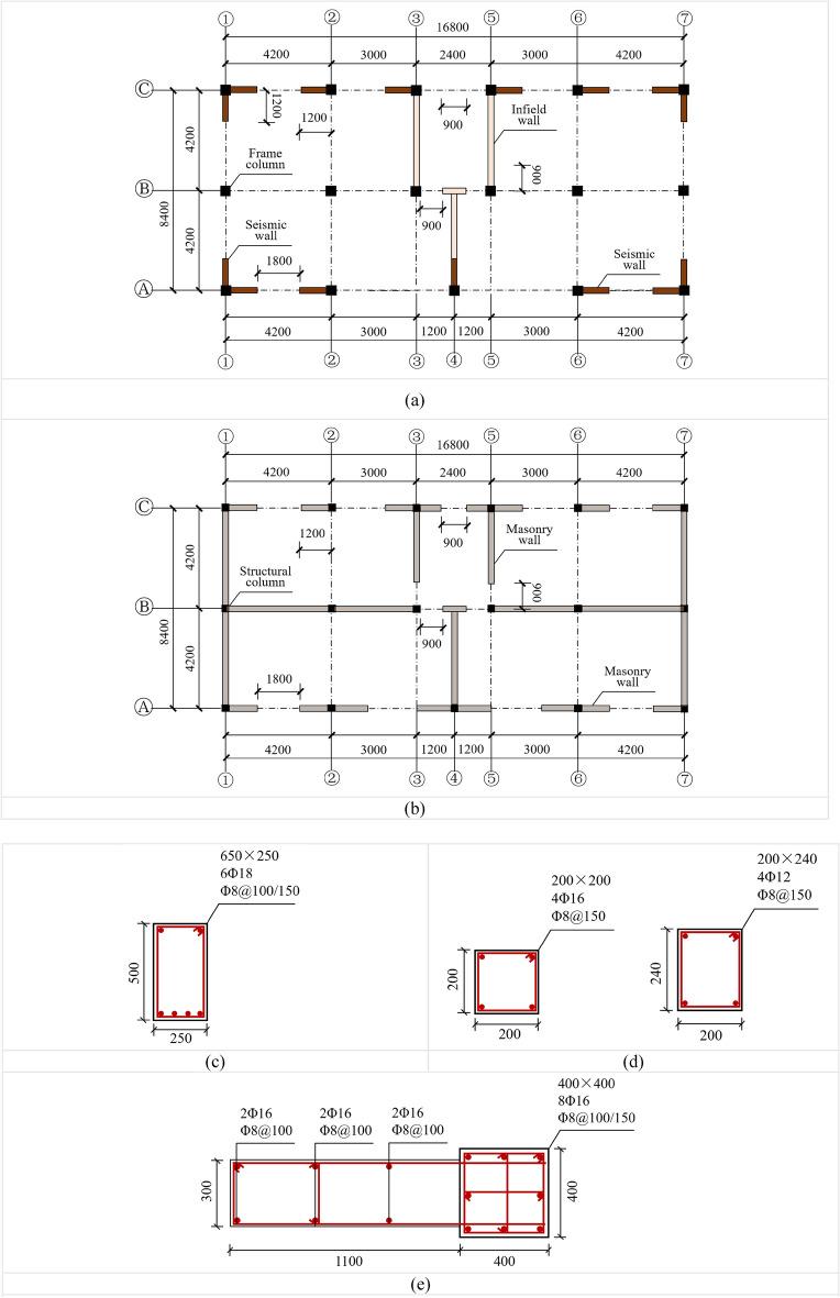
The bottom frame masonry structure (BFMS) in a semi-ruined state is vulnerable to secondary collapse under strong aftershocks, posing a significant risk to rescuers during post-earthquake operations. Therefore, investigating the mechanisms and characteristics of secondary collapse of BFMS in a semi-ruined state (BFMS-SR) under aftershocks is critical. This paper proposes a numerical modeling framework for BFMS under mainshock-aftershock conditions, utilizing a combination of the finite element method (FEM) and the finite discrete element method (FDEM). The validation demonstrates that FEM-FDEM can effectively reproduce the transition of BFMS from an intact state to a semi-ruined state, ultimately leading to a secondary collapse state. Subsequently, the mechanisms and structural response characteristics of BFMS-SR under aftershocks are analyzed. The secondary collapse of the BFMS-SR under aftershocks is primarily governed by column hinge development. Furthermore, according to the time-history curve of absolute vertical velocity, the secondary collapse of BFMS-SR exhibits four distinct stages: stabilization, structural response development, secondary collapse, and post-collapse. The end of the stabilization phase is proposed as the early-warning threshold for secondary collapse of BFMS-SR under aftershocks, aiding in post-earthquake rescue operations.

摘要
https://cdn.ncbi.nlm.nih.gov/pmc/blobs/5d37/11599729/496073a8ee93/41598_2024_80612_Fig1_HTML.jpg

文献检索

告别复杂PubMed语法,用中文像聊天一样搜索,搜遍4000万医学文献。AI智能推荐,让科研检索更轻松。

立即免费搜索

文件翻译

保留排版,准确专业,支持PDF/Word/PPT等文件格式,支持 12+语言互译。

免费翻译文档

深度研究

AI帮你快速写综述,25分钟生成高质量综述,智能提取关键信息,辅助科研写作。

立即免费体验