Suppr超能文献

三种产蛋系统的比较评估:鸡舍特征与管理实践

Comparative evaluation of three egg production systems: Housing characteristics and management practices.

作者信息

Zhao Y, Shepherd T A, Swanson J C, Mench J A, Karcher D M, Xin H

机构信息

Department of Agricultural and Biosystems Engineering, Iowa State University, Ames, IA, USA.

Department of Animal Science, Michigan State University, East Lansing, MI, USA.

出版信息

Poult Sci. 2015 Mar;94(3):475-84. doi: 10.3382/ps/peu077.

Abstract

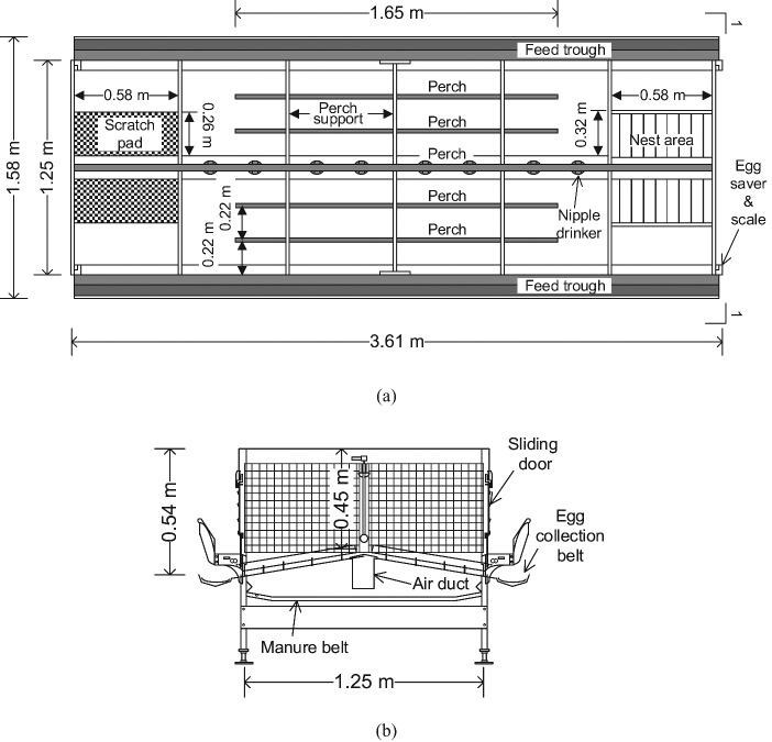
This paper is an integral part of the special publication series that arose from the multidisciplinary and multi-institutional project of the Coalition for Sustainable Egg Supply (CSES). The CSES project involves 3 housing systems for egg production at the same research farm site in the Midwest, USA, namely, a conventional cage (CC) house, an aviary (AV) house, and an enriched colony (EC) house. The CC house (141.4 m L×26.6 m W×6.1 m H) had a nominal capacity of 200,000 hens (6 hens in a cage at a stocking density of 516 cm2/hen), and the cages were arranged in 10 rows, 8 tiers per cage row, with a perforated aisle walkway at 4-tier height. The AV house (154.2 m L×21.3 m W×3.0 m H) and the EC house (154.2 m L×13.7 m W×4.0 m H) each had a nominal capacity of 50,000 hens. The AV house had 6 rows of aviary colonies, and the EC house had 5 rows of 4-tier enriched colonies containing perches, nestbox, and scratch pads (60 hens per colony at a stocking density of 752 cm2/hen). The overarching goal of the CSES project, as stated in the opening article of this series, was to comprehensively evaluate the 3 egg production systems from the standpoints of animal behavior and well-being, environmental impact, egg safety and quality, food affordability, and worker health. So that all the area-specific papers would not have to repeat a detailed description of the production systems and the management practices, this paper is written to provide such a description and to be used as a common reference for the companion papers.

摘要

本文是可持续鸡蛋供应联盟(CSES)多学科、多机构项目产生的系列特刊的重要组成部分。CSES项目涉及美国中西部同一研究农场场地的3种蛋鸡生产养殖系统,即传统鸡笼(CC)舍、开放式鸡舍(AV)和富集鸡群(EC)舍。CC鸡舍(长141.4米×宽26.6米×高6.1米)的标称容量为20万只母鸡(每笼6只母鸡,饲养密度为516平方厘米/只),鸡笼排成10排,每排鸡笼8层,在4层高度处设有穿孔过道。AV鸡舍(长154.2米×宽21.3米×高3.0米)和EC鸡舍(长154.2米×宽13.7米×高4.0米)的标称容量均为5万只母鸡。AV鸡舍有6排开放式鸡群,EC鸡舍有5排4层的富集鸡群,配有栖木、产蛋箱和沙垫(每群60只母鸡,饲养密度为752平方厘米/只)。正如本系列开篇文章所述,CSES项目的总体目标是从动物行为与福利、环境影响、鸡蛋安全与质量、食品可承受性以及工人健康等角度,全面评估这3种蛋鸡生产系统。为使所有特定区域的论文不必重复对生产系统和管理实践的详细描述,撰写本文以提供此类描述,并用作配套论文的通用参考资料。

https://cdn.ncbi.nlm.nih.gov/pmc/blobs/0110/4990892/bef0bb85d5e2/peu077fig1.jpg

文献AI研究员

20分钟写一篇综述,助力文献阅读效率提升50倍。

立即体验

用中文搜PubMed

大模型驱动的PubMed中文搜索引擎

马上搜索

文档翻译

学术文献翻译模型,支持多种主流文档格式。

立即体验